U gebruikt een verouderde internetbrowser.
We raden u aan om de meest recente internetbrowser te installeren voor de beste weergave van deze website.
Een internetbrowser die up to date is, staat ook garant voor veilig surfen.

Omschrijving

Instapklare nieuwe woning in een rustige woonwijk

Project Tabaksveld bestaat uit 2 tijdloze en kwalitatieve halfopen woningen. De woningen zijn gelegen op het einde van een doodlopende straat in een nieuwe verkaveling en met een zeer goede verbinding naar de buurtgemeenten.

Beide woningen beschikken over heel wat parkeermogelijkheden dankzij de inpandige garage + carport.
Deze woningen zijn ideaal als vaste woonplaats, maar ook als veilige investering met groeiende meerwaarde.

Deze twee halfopen woningen werden opgetrokken in een stijlvolle, strakke en moderne architectuur. De combinatie van wit gevelmetselwerk en antraciet aluminium schrijnwerk zorgt voor een eigentijdse uitstraling van de woning. Beide eigendommen beschikken bovendien over een carport naast de woning met inpandige garage.

Woning 1
Deze moderne woning op een perceel van 400 m² biedt 166 m² bewoonbare oppervlakte. Op het gelijkvloers vind je een lichtrijke leefruimte met open keuken en bureauruimte, een berging en een inpandige garage. Boven zijn er 3 ruime slaapkamers, een badkamer, en een apart toilet. De zuidwestgerichte tuin, carport en ruime oprit maken het plaatje compleet.

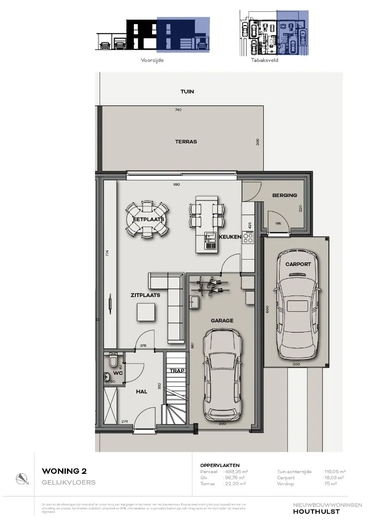
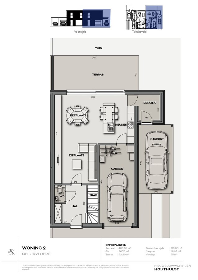
Woning 2
Deze ruime woning van 172 m² ligt op een perceel van 488 m². De open leefruimte sluit aan op een keuken met kookeiland en praktische berging. Verder is er een inpandige garage en carport. Boven bevinden zich 3 slaapkamers, een extra kamer (bureau of 4e slaapkamer), 2 badkamers en een apart toilet. Geniet volop van de zon in de zuidwestgerichte tuin met terras.

Wat maakt Tabaksveld uniek?
Kleinschalig project;
rustig gelegen op het einde van een doodlopende straat;
kwalitatieve architectuur en strakke, moderne afwerking;
gebruik van uitsluitend duurzame materialen;
3 tot 4 slaapkamers;
zuidwest gerichte tuinen;
zeer veel parkeermogelijkheid;

Wenst u een afspraak in deze afgewerkte woningen?
Maak uw afspraak via celine@grouptrybou.be of bel 0494 73 44 49.
Contacteer ons voor een gratis brochure van dit project.


Ligging

Neem vrijblijvend contact op

Wenst u meer informatie of het pand te bezoeken? Contacteer ons vrijblijvend voor meer informatie. 
Wanneer wij uw aanvraag hebben ontvangen zullen wij verder contact met u opnemen. 


U moet akkoord gaan met het privacybeleid van deze website
* Verplicht in te vullen
Niet gevonden wat u zocht? Schrijf u dan vrijblijvend in op onze nieuwsbrief en blijf op de hoogte van ons recentste aanbod.
Schrijf u in
Terug naar boven
Sluit menu IMMO TRYBOU BV