U gebruikt een verouderde internetbrowser.
We raden u aan om de meest recente internetbrowser te installeren voor de beste weergave van deze website.
Een internetbrowser die up to date is, staat ook garant voor veilig surfen.

Omschrijving

Rustig gelegen project met 3 woningen te Houthulst

Dit project wordt gerealiseerd door Desimco.

3 moderne en duurzame nieuwbouwwoningen gelegen op een boogscheut van de Grote markt en tal van nutsvoorzieningen.

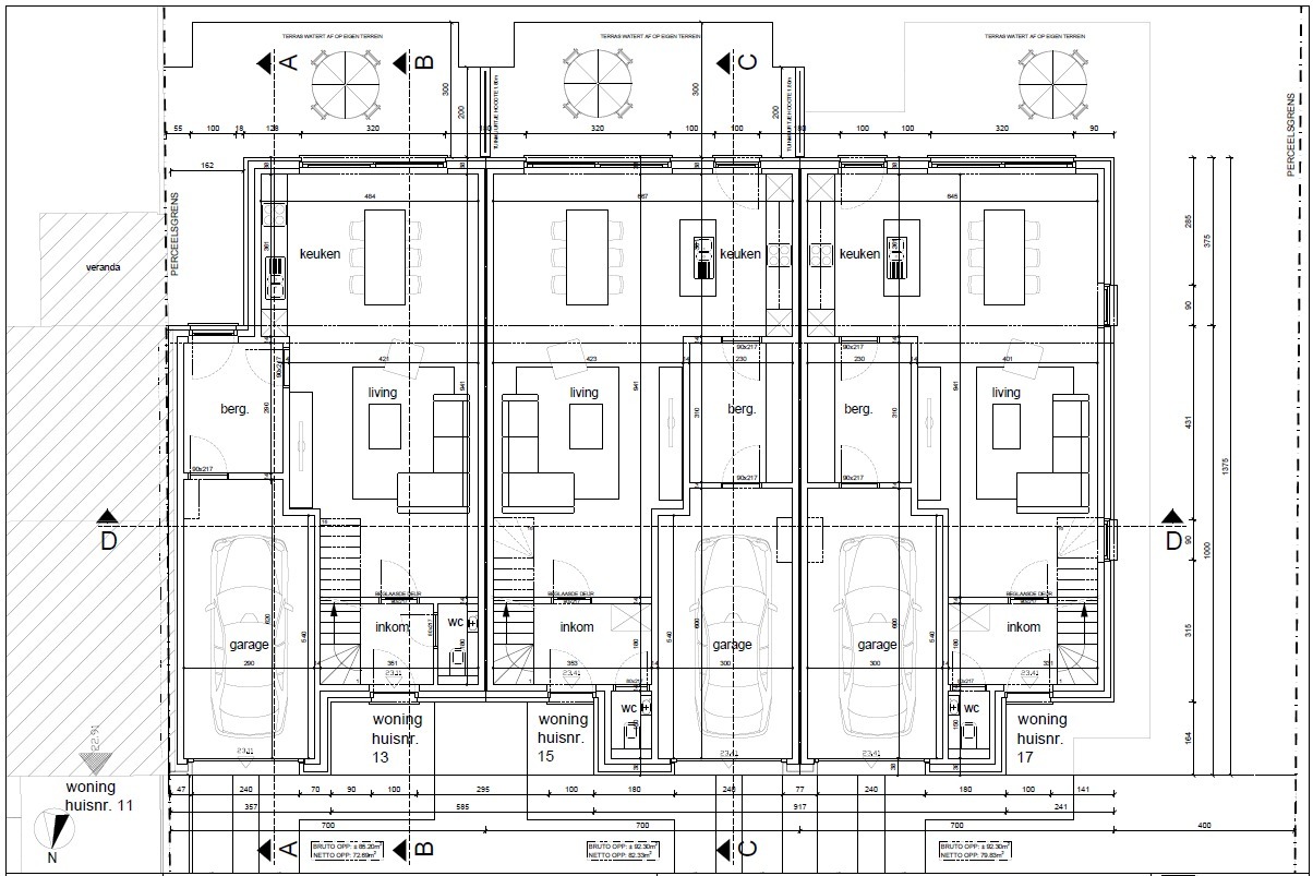
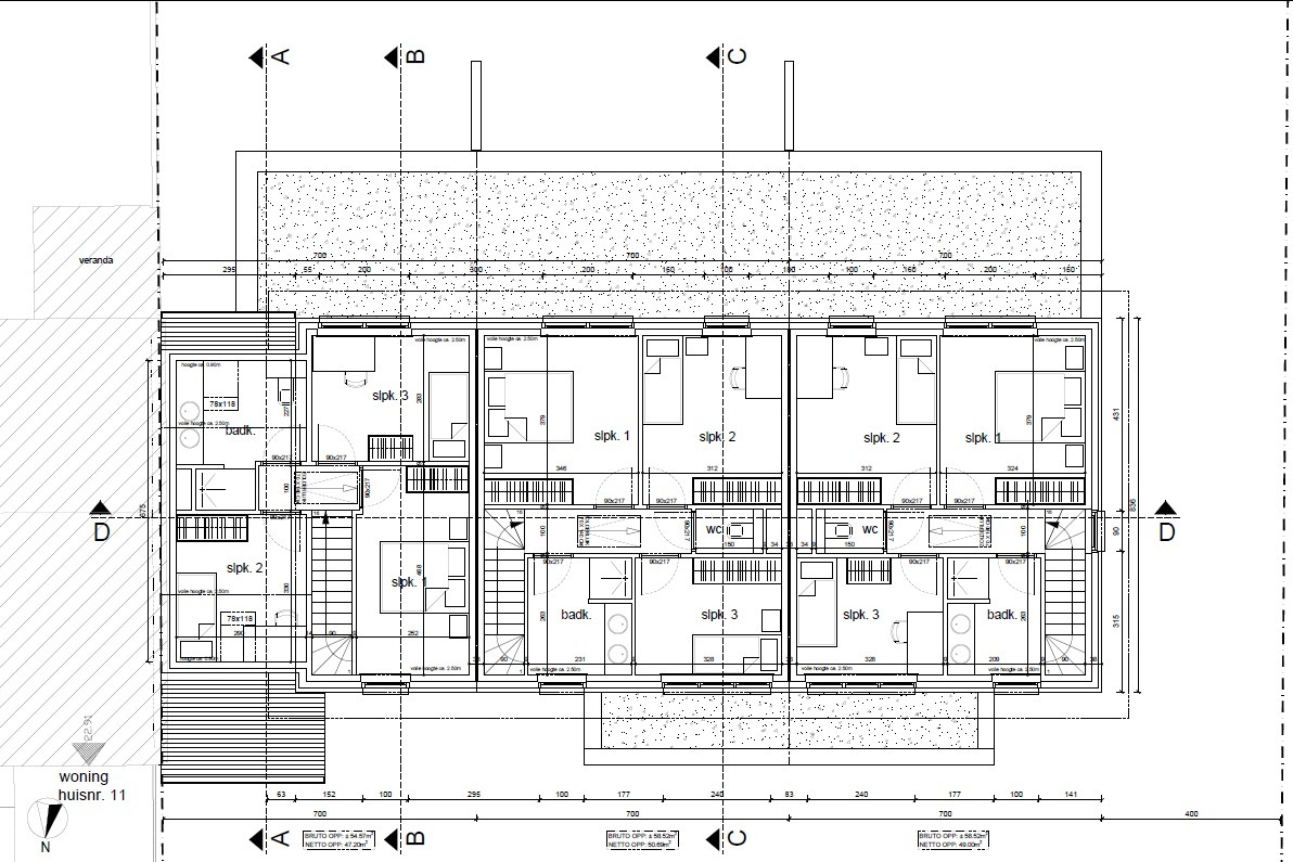
het project bestaat uit 2 halfopen woningen en 1 gesloten bebouwing.
De indeling is als volgt:
Gelijkvloers: inkomhal met gastentoilet - ruime lichtrijke leefruimte met aansluitende open keuken. De keuken is volledig uitgerust met kwalitatieve materialen en toestellen - berging/wasplaats - ruime garage met sectionale garagepoort.

Eerste verdiep: 2 volwaardige slaapkamers + 1 kinderkamer - badkamer met dubbele wastafel en inloopdouche - toilet.

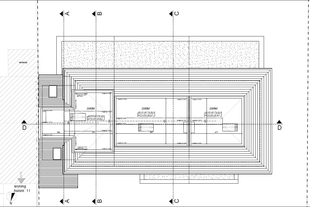
Tweede verdiep: de ruime zolder is bereikbaar via een uitklapbare trap.

bewoonbare oppervlakte van 141m² tot 148m²

Zuidgerichte tuin

Regenput (7.500L)

Grondwaarde (excl. registratierechten)
Constructiewaarde (excl. BTW)


Ligging

Neem vrijblijvend contact op

Wenst u meer informatie of het pand te bezoeken? Contacteer ons vrijblijvend voor meer informatie. 
Wanneer wij uw aanvraag hebben ontvangen zullen wij verder contact met u opnemen. 


U moet akkoord gaan met het privacybeleid van deze website
* Verplicht in te vullen
Niet gevonden wat u zocht? Schrijf u dan vrijblijvend in op onze nieuwsbrief en blijf op de hoogte van ons recentste aanbod.
Schrijf u in
Terug naar boven
Sluit menu IMMO TRYBOU BV