U gebruikt een verouderde internetbrowser.
We raden u aan om de meest recente internetbrowser te installeren voor de beste weergave van deze website.
Een internetbrowser die up to date is, staat ook garant voor veilig surfen.

Kampstraat 10 / D, 8840
Vraagprijs: € 369.500

Omschrijving

Nieuwbouwwoning met hoogstaande afwerking te Staden

Rustig gelegen nieuwbouw(koppel)woning op 275 m².

Opendeur: zaterdag 28/06/2025 tussen 10:00h - 12:00h - Kom vrijblijvend langs!

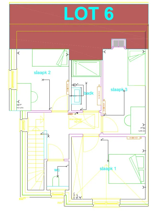
De woning bestaat uit:
Gelijkvloers: inkomhal - gastentoilet - trap richting eerste verdiep - lichtrijke woonkamer - open keuken met aansluitende berging - zonnige tuin.

Verdieping: drie slaapkamers - ingerichte badkamer met lavabomeubel en bad/douche - apart toilet - toegang tot zolder met zoldertrap.

Regenwaterput: 10.000L

Ventilatiesysteem C

Carport aanwezig

De woning wordt afgewerkt volgens het standaard voorziene lastenboek.

Wenst u meer info over deze prachtige nieuwbouwwoning? Bel 0494 73 44 49 of mail naar celine@grouptrybou.be


Kenmerken

Algemeen

Adres:Kampstraat 10/D
Staden
Referentie:Kampstraat 10D, Staden - Lot 6
Vraagprijs:€ 369.500
Type:Woning
Beschikbaar vanaf:Bij oplevering
Perceeloppervlakte:275 m²
Type constructie:Traditioneel
Bouwjaar:2024
Algemene staat:Instapklaar

Indeling

Slaapkamers:3
Badkamers:1
WC:2
Woonkamer:Ja
Keuken:Ja, Open keuken, Ingericht met toestellen
Tuin:Ja
Tuin oriëntatie:Zuid

Comfort

Comfort:Tuin, Digitale tv
Bushalte:Ja
Winkel:Ja
School:Ja
Kinderopvang:Ja
Bank:Ja
Ontspanning:Ja
Restaurant:Ja

Informatieplicht

EPC Certificaat Nr.:EPB IN OPMAAK
Stedenbouwkundige vergunning:Ja
Voorkooprecht:Neen
Overstromingsgevoelig:Geen overstromingsgevoelig gebied
Overstromingsgebied:Geen afgebakende zones
Overstromingskans perceel (P-score):A
Overstromingskans gebouw (G-score):A
Erfgoed:Geen beschermd erfgoed

Ligging

Neem vrijblijvend contact op

Wenst u meer informatie of het pand te bezoeken? Contacteer ons vrijblijvend voor meer informatie. 
Wanneer wij uw aanvraag hebben ontvangen zullen wij verder contact met u opnemen. 


U moet akkoord gaan met het privacybeleid van deze website
* Verplicht in te vullen
Niet gevonden wat u zocht? Schrijf u dan vrijblijvend in op onze nieuwsbrief en blijf op de hoogte van ons recentste aanbod.
Schrijf u in
Terug naar boven
Sluit menu IMMO TRYBOU BV