U gebruikt een verouderde internetbrowser.
We raden u aan om de meest recente internetbrowser te installeren voor de beste weergave van deze website.
Een internetbrowser die up to date is, staat ook garant voor veilig surfen.

Helaas, dit pand is verkocht

8650

Omschrijving

kwalitatieve nieuwbouwvilla op unieke liggen te Houthulst

Hedendaagse, kwalitatieve nieuwbouw woning grenzend aan het groene kasteeldomein en vijverpark "De Fabriekeput".

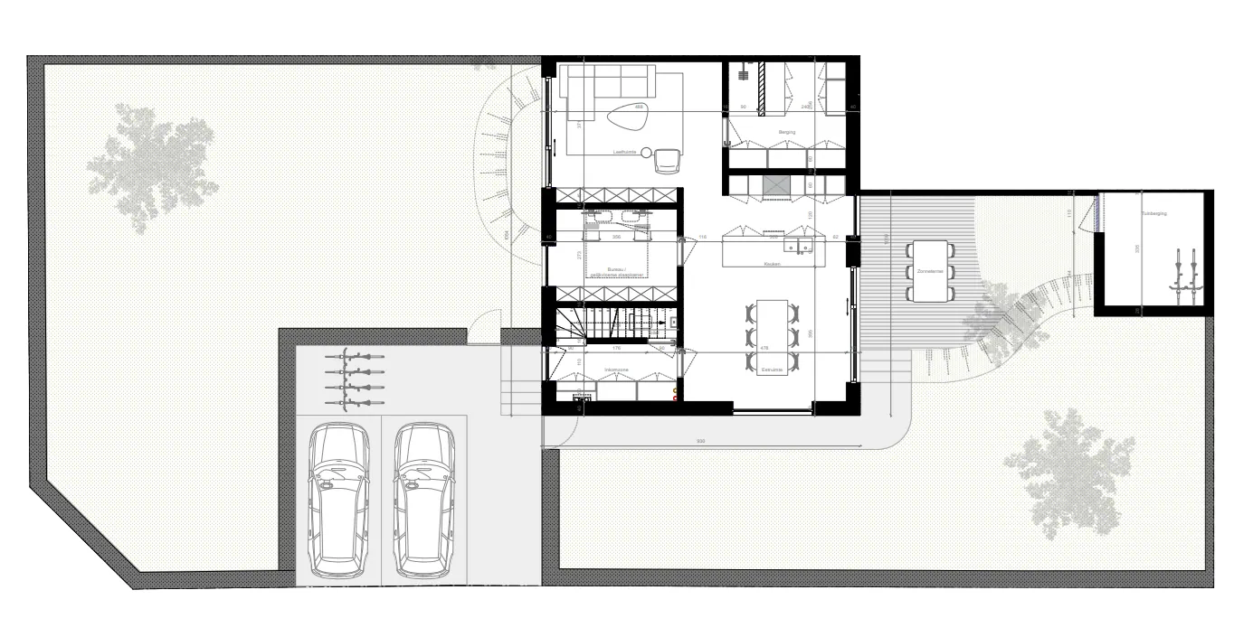
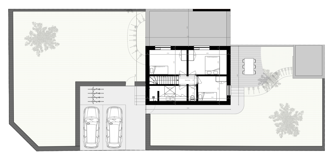
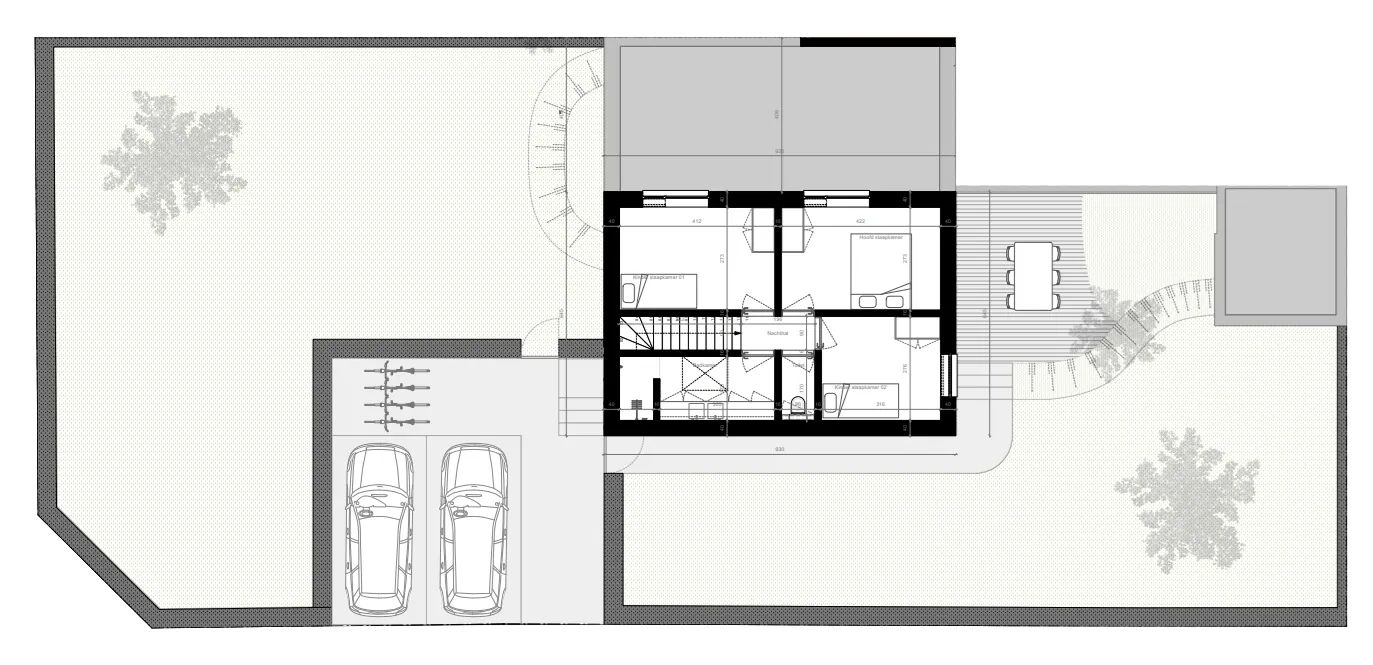
De indeling is als volgt:
Gelijkvloers: inkomhal - gastentoilet - ruime bureauruimte / of extra slaapkamer (11 m²) met badkamervoorziening - lichtrijke leefruimte (21 m²) - eetruimte met open keuken (30 m²).
Eerste verdiep: nachthal - 3 moduleerbare slaapkamers (12,5 m²) (9,6 m²) (9,3 m²) - toilet - badkamer met inloopdouche en dubbele lavabo (6,6)

Zongerichte tuin met terraszone en tuinberging.

Optimale oriëntatie

Maximale privacy

Energiezuinig:
- Zonnepanelen aanwezig
- S-peil van 28/27

Vloerverwarming - hoogcondensatieketel (warmtepomp eveneens mogelijk)

Regenwaterpunt: 5.000L

Meer informatie gewenst?
Immo@grouptrybou.be
051/57.54.61


Niet gevonden wat u zocht? Schrijf u dan vrijblijvend in op onze nieuwsbrief en blijf op de hoogte van ons recentste aanbod.
Schrijf u in
Terug naar boven
Sluit menu IMMO TRYBOU BV