U gebruikt een verouderde internetbrowser.
We raden u aan om de meest recente internetbrowser te installeren voor de beste weergave van deze website.
Een internetbrowser die up to date is, staat ook garant voor veilig surfen.

Helaas, dit pand is verkocht

8650

Omschrijving

Polyvalente, ruime (handels)woning op zongericht perceel van 1243m²

Centraal gelegen handelshuis - voormalige winkel - met zonnige tuin.

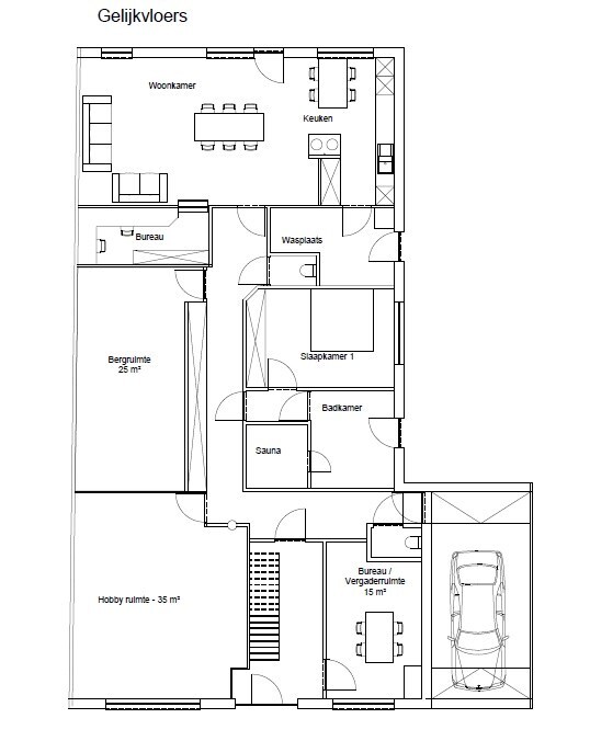
De indeling is als volgt:
Gelijkvloers: inkomhal - ontvangstruimte - winkel/werkplaats - gastentoilet - ruime doorrijgarage met dubbele sectionaalpoort - berging - ruime slaapkamer - badkamer met douche, badkamermeubel en sauna - ruime, lichtrijke leefruimte met open ingerichte keuken - bureau op verhoog - technisch lokaal
Verdiep: nachthal - 2 slaapkamers - apart toilet - 2 zolderkamers.

Centrale verwarming op aardgas - radiatoren

Ruime zuid-gerichte tuin met grote vijver en tuinberging




Niet gevonden wat u zocht? Schrijf u dan vrijblijvend in op onze nieuwsbrief en blijf op de hoogte van ons recentste aanbod.
Schrijf u in
Terug naar boven
Sluit menu IMMO TRYBOU BV