U gebruikt een verouderde internetbrowser.
We raden u aan om de meest recente internetbrowser te installeren voor de beste weergave van deze website.
Een internetbrowser die up to date is, staat ook garant voor veilig surfen.

Helaas, dit pand is verkocht

8650

Omschrijving

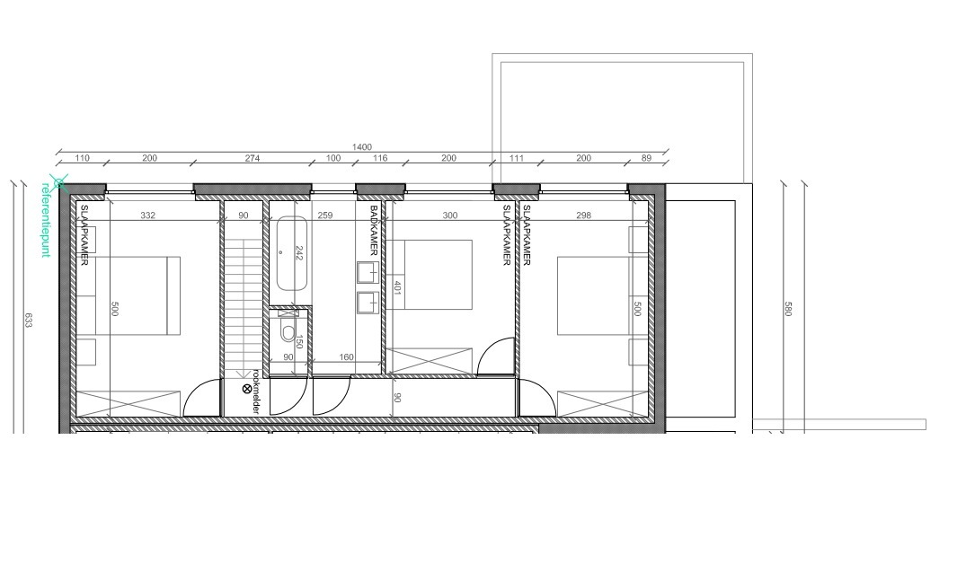
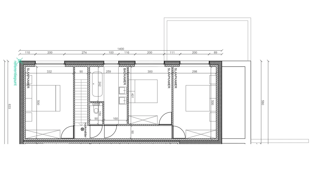
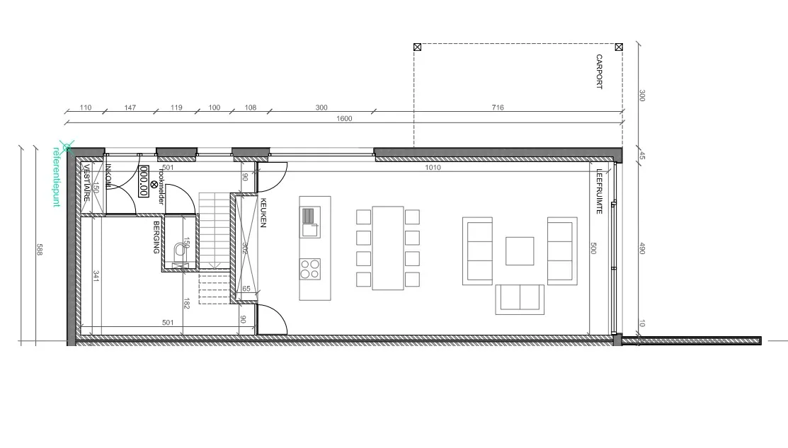
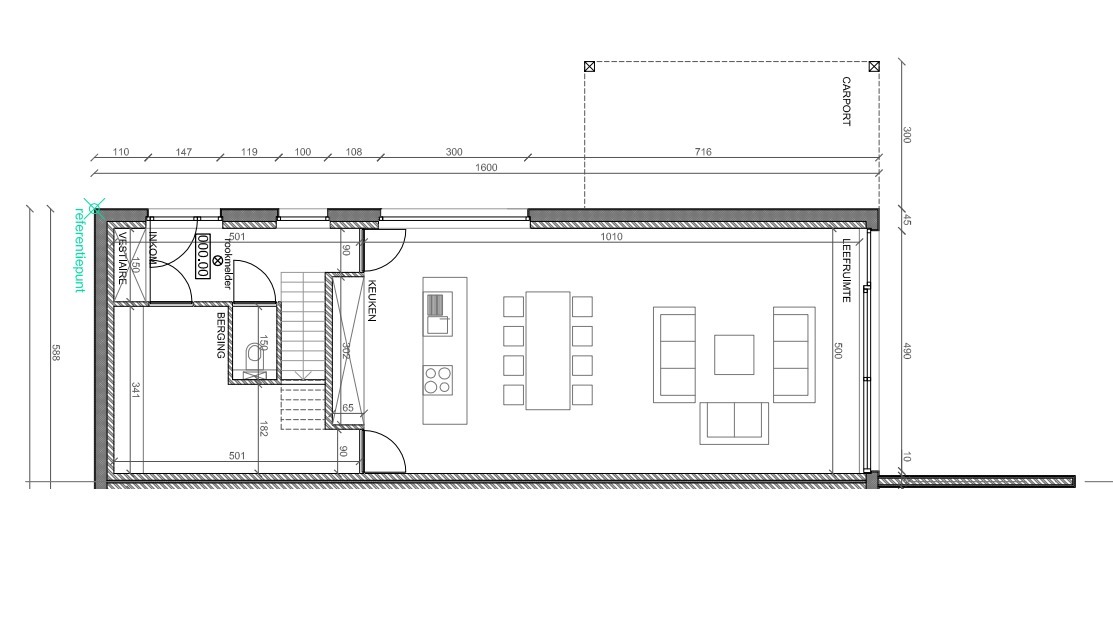
Moderne halfopen nieuwbouwwoning met 3 slaapkamers

Modern project met 3 wooneenheden te Jonkershove.

De indeling is als volgt:
Gelijkvloers: inkomhal met vestiaire - berging - gastentoilet - garage - ruime leefruimte met open keuken.
Verdiep: nachthal - apart toilet - 3 slaapkamers - badkamer.

Zuidwest georiënteerde tuin

Ventilatiesysteem D

regenwaterput: 5.000 L

Vloerverwarming aanwezig

6 fotovoltaïsche zonnepanelen met omvormer

Deze nieuwbouwwoning komt in aanmerking voor het verlaagd BTW-tarief 6%, indien de koper aan de voorwaarden voldoet.

Deze Prijs is exclusief BTW, notariskosten, aansluitkosten.


Niet gevonden wat u zocht? Schrijf u dan vrijblijvend in op onze nieuwsbrief en blijf op de hoogte van ons recentste aanbod.
Schrijf u in
Terug naar boven
Sluit menu IMMO TRYBOU BV