U gebruikt een verouderde internetbrowser.
We raden u aan om de meest recente internetbrowser te installeren voor de beste weergave van deze website.
Een internetbrowser die up to date is, staat ook garant voor veilig surfen.

Helaas, dit pand is verkocht

8650

Omschrijving

Perfect afgewerkte woning in een rustige straat

Uitstekend gelegen halfopen woning in doodlopende straat.

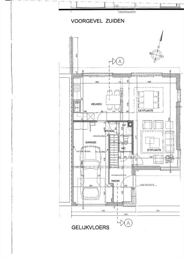
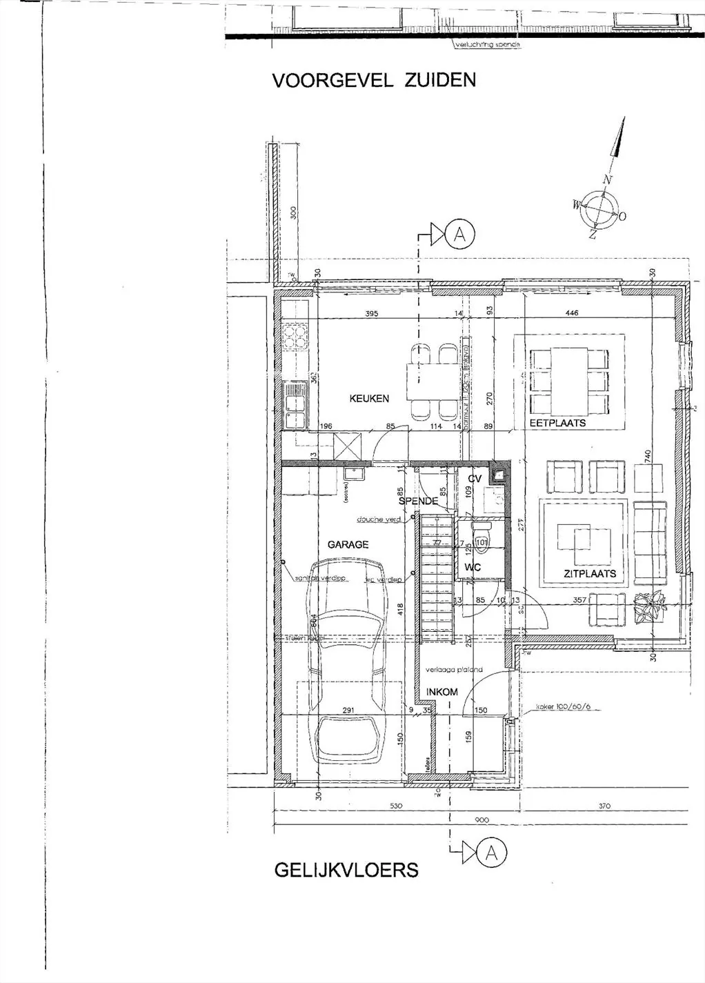
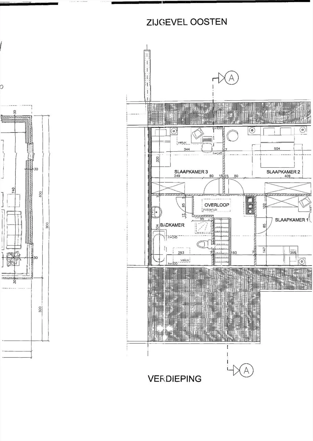
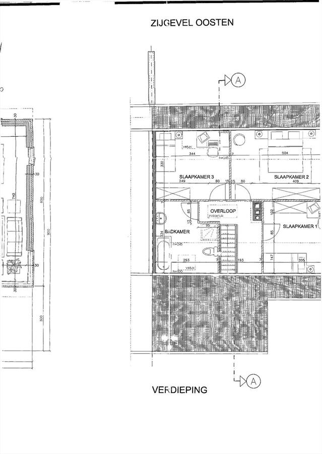
De woning bestaat uit:

Gelijkvloers: inkomhal met apart toilet - ruime lichtrijke leefruimte - open, volledig ingerichte keuken - ruime, perfect afgewerkte veranda (30m²) - koele berging - stooklokaal - ruime garage
Verdieping: nachthal - 3 ruime slaapkamers - badkamer met dubbele wastafel, bad, douche en toilet.

Aangelegde tuin met tuinberging en carport.

Uiterst centrale ligging vlakbij bakker, beenhouwer, school ...


Niet gevonden wat u zocht? Schrijf u dan vrijblijvend in op onze nieuwsbrief en blijf op de hoogte van ons recentste aanbod.
Schrijf u in
Terug naar boven
Sluit menu IMMO TRYBOU BV