U gebruikt een verouderde internetbrowser.
We raden u aan om de meest recente internetbrowser te installeren voor de beste weergave van deze website.
Een internetbrowser die up to date is, staat ook garant voor veilig surfen.

Helaas, dit pand is verkocht

8650

Omschrijving

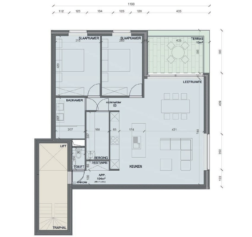
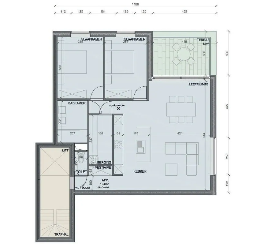
Prachtig nieuwbouwappartement op unieke ligging te Houthulst

Prachtig, kwalitatief gelijkvloersappartement van 104m² bevindt zich op een unieke locatie met prachtige vergezichten.

De indeling van het appartement is als volgt:
Inkomhal - apart toilet - ruime, lichtrijke leefruimte (45m²) met open volledig ingerichte keuken - slaapkamer 1 (13,5m²) - slaapkamer 2 (12m²) - ingerichte badkamer met dubbele wastafel en ruime inloopdouche - praktische berging (5,5m²) - terras (13m²).

Algemene informatie:
- CV op aardgas
- lift aanwezig
- kwalitatieve afwerking
- aluminium schrijnwerk met hoogrendementsbeglazing
- mogelijkheid tot aankopen van een ruime garagebox en/of staanplaats

Meer info gewenst?
neem gerust contact met ons op:

💻 Immo@grouptrybou.be
📞 051/57.54.61


Niet gevonden wat u zocht? Schrijf u dan vrijblijvend in op onze nieuwsbrief en blijf op de hoogte van ons recentste aanbod.
Schrijf u in
Terug naar boven
Sluit menu IMMO TRYBOU BV